{{ $t('FEZ002') }} 總務處|
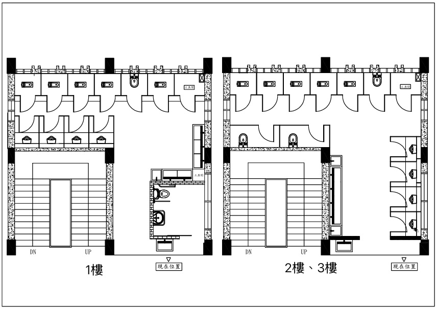
本校參與教育部國教署114-116年度 公立國民中小學老舊廁所整修工程計畫,
獲核定補助390萬元,預計115年暑假開始施工,
為提供師生更舒適寬敞的如廁空間,
規劃1~3樓皆為性別友善廁所,
各式便器皆設有完整獨立隔間!


{{ $t('FEZ003') }} Invalid date
{{ $t('FEZ014') }} Invalid date|
{{ $t('FEZ004') }} 2026-01-26|
{{ $t('FEZ005') }} 35|